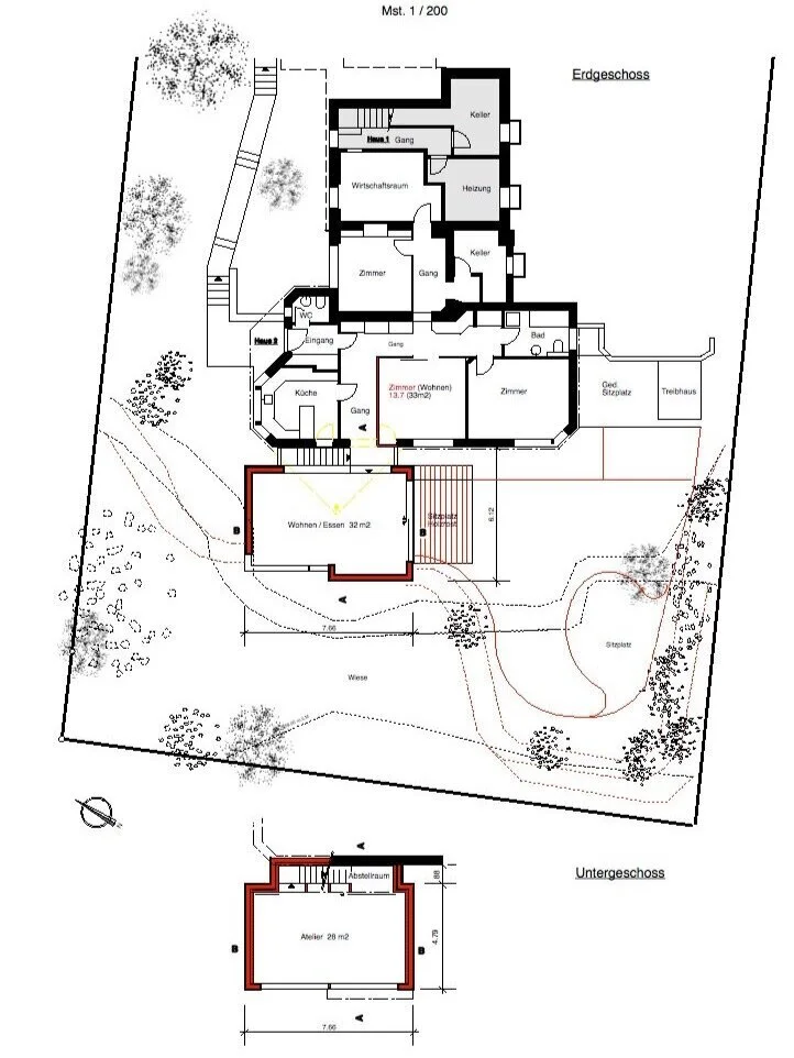
Ein Glasband zwischen alt- und Neubau

Anbau Einfamilienhaus - Erlenbach, 2003

Der Projektbeschrieb wird bearbeitet.

Projekt: 2 Geschossener Anbau
Ort: Erlenbach
Zeitraum: 2002- 2003
Leistung: Entwurf , Planung und Bauleitung
Nutzung: Wohnhaus-Teil
Besonderheiten:
– Anbau mit Glasband von alt zu neu
– Untergeschoss massiv , neues Wohnzimmer in Holz-Elementbau
– mit Anbau 60m2 mehr Wohnfläche
- 4 Monate Bauzeit , während Bauzeit bewohnt

Treppe.jpg
Bildschirmfoto%2B2014-12-16%2Bum%2B17.05.24.jpg
ELF++Fassade+Doku+v12+Kopie.jpg

Vergleich: heute - vorher

IMG_0105.jpeg
108-0848_IMG.jpg

Bad vorher

Badewanne mit Dusche

Bad vorher

Badewanne mit Dusche