MBG Fassade klein.jpg
 

Riegelhaus innen im neuen Look

Umbau altes Riegelhaus – Gossau, 2002

Die neuen Besitzer wünschten sich für das 250 jährige Bauernhaus einen ruhigen, leichten und modernen Innenausbau. Es wurde ein einheitliches Material- und Farbkonzept entworfen, welches im ganzen Bauernhaus erlebbar ist. Um leichter zu wirken wurden die dominanten Holztreppen durch leichte Stahltreppen ersetzt. Küche, Badezimmer und diverse Möbel sind mit Nussbaumholz individuell von der Architektin entworfen. Das Vordach wurde mit einer Stahlkonstruktion abgefangen und schaffte so Platz für einen neuen Carport.    

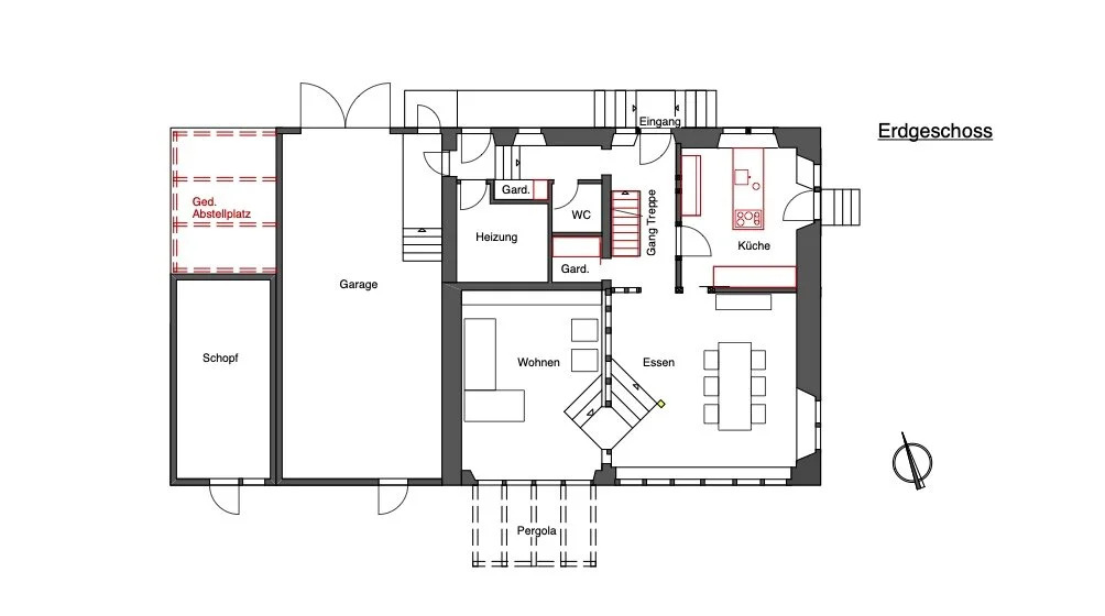
MBG Dok. Grundrisse EG.jpg
MBG Dok. Grundrisse OG.jpg

Projekt: Innenumbau, Fassadenrenovation mit Carport
Ort: Gossau
Zeitraum: 2002 & 2004
Leistung: Entwurf sämtlicher Möbel inkl. Küche, Planung und Bauleitung
Nutzung: Wohnhaus Privat
Besonderheiten:
– schlichter Innenausbau mehrheitlich mit Nussbaum
– Neues Treppenhaus mit Stahl

MBG4 Galerie klein.jpg

Vergleich: heute - vorher

MBG4 Galerie klein.jpg
Bad vorher Badewanne mit Dusche
 
MBG+2Essen-Wohnen+klein.jpg
Bad vorher Badewanne mit Dusche
 
MBG3 EL-Zi-BAd klein.jpg
Bad vorher Badewanne mit Dusche
 
Carport neu.jpg
Vor Carport.jpg